
一种清雅居家生活向往,清新逸致的生活状态,源于历史文人骚客身处盛世之下所衍生出来的状态。本空间以“逸”为设计主题,追求这种居家状态,让主人居住在空间中,得到一种源于精神的生活享受。
本空间更为年轻、创意和国际性,增加了空间的结构穿插和自然光线的引入。青嫩极简而具有个性的识别度,却是将古时文人墨客心中的胸臆,和主人年轻才华的外放特征所连接!

广州301平米以上别墅现代简约风格装修效果图
别墅装修设计一楼平面图

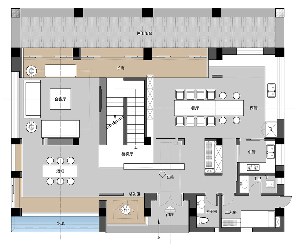
广州301平米以上别墅现代简约风格装修效果图
别墅装修设计二楼平面图

广州301平米以上别墅现代简约风格装修效果图
别墅装修设计二楼楼梯厅

广州301平米以上别墅现代简约风格装修效果图
别墅装修设计二楼休闲厅

广州301平米以上别墅现代简约风格装修效果图
别墅装修设计二楼儿童玩乐区

广州301平米以上别墅现代简约风格装修效果图
别墅装修设计二楼主卧室

广州301平米以上别墅现代简约风格装修效果图
别墅装修设计一楼玄关

广州301平米以上别墅现代简约风格装修效果图
别墅装修设计一楼楼梯厅

广州301平米以上别墅现代简约风格装修效果图
别墅装修设计一楼酒吧

广州301平米以上别墅现代简约风格装修效果图
别墅装修设计一楼客厅

广州301平米以上别墅现代简约风格装修效果图
别墅装修设计一楼客厅

广州301平米以上别墅现代简约风格装修效果图
别墅餐厅装修设计

广州301平米以上别墅现代简约风格装修效果图
别墅餐厅装修设计

广州301平米以上别墅现代简约风格装修效果图
别墅走廊装修设计
港航华庭现代简约风格
现代简约风格101-200平米三居室
裕龙君悦现代简约风格
现代简约风格101-200平米三居室
珠江帝景现代简约风格
现代简约风格201-300平米别墅
海伦时光现代简约风格
现代简约风格101-200平米三居室
富力桃园现代简约风格
现代简约风格101-200平米三居室
三江雅苑现代简约风格案例
现代简约风格101-200平米三居室
御峰臻品现代简约风格
现代简约风格101-200平米四居室
海伦时光现代简约风格
现代简约风格101-200平米三居室